nappali1

A MÚLT ELEGANCIÁJA – A JELEN KORSZERŰSÉGÉVEL!

Győr
33.500.000 Ft

A MÚLT ELEGANCIÁJA – A JELEN KORSZERŰSÉGÉVEL!

33.500.000 Ft
Részletes adatok

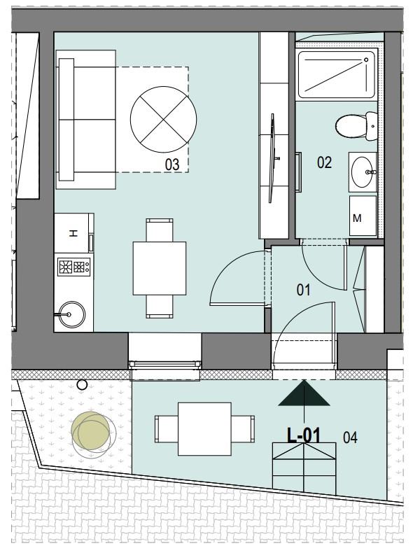
Győr belvárosától mindössze néhány lépésre, a város egyik ikonikus, örök értékű részén kínálok megvételre egy igazán KÜLÖNLEGES HANGULATÚ GARZONLAKÁST.

 

Az ingatlan egy műemlék jellegű épület teljes újjászületésének része:
a karaktert meghatározó főfalak megőrzése mellett TELJESEN ÚJ, korszerű szerkezettel és műszaki tartalommal került újjáépítésre.

 

Műszaki tartalom – kompromisszumok nélkül
A Kormányhivatal Örökségvédelmi Főosztálya által felügyelve - ezáltal a legszigorúbb építészeti előírásoknak megfelelően - történt Győr egyik ikonikus műemlékjellegű épületének modernizálása, a Kossuth 32 társasház újjászületése.

 

Korszerű megoldások:
- hőszivattyús rendszer
- padlófűtés
- valódi fa nyílászárók, 3 rétegű üvegezéssel
- teljesen új villamos- és vízhálózat.

 

Tökéletes választás, hiszen:
- elérhető árú, értékálló, prémium ingatlan,
- befektetésnek, vagy fiataloknak, esetleg egyedülálló részére is zseniális,
- kis rezsivel, gondozás és probléma mentes lakás.

 

Különleges plusz: 10 m2 zöld belső udvar
- a lakáshoz privát kertkapcsolat tartozik
- mely csendes, hangulatos belső udvarra néz.

 

Állapot és lehetőségek
- jelenleg emelt szintű fűtéskész állapotban van a lakás, így a burkolatok még kiválaszthatók
- kulcsrakész befejezés: + 3 MFt.

 

További érték
- privát 5,5 m²-es tároló, melynek ára: +1,5 MFt .

 

Az ingatlanok értékét elsősorban a lokáció határozza meg!

Ez a lakás Győr történelmi, örök értékű részén elhelyezkedve nemcsak biztos befektetést, de folyamatosan növekvő értéket és kiváló kiadhatóságot jelent egyszerre.

 

Ragadja meg a lehetőséget!

Kor
Fűtési mód
Bútorozás
NIncs megadva
Tulajdonviszony
NIncs megadva
Tájolás
NIncs megadva
Kert
NIncs megadva
Pince
Nincs
Klíma
Nincs
Lift
Nincs
Tároló
Van
Parkolás
NIncs megadva
Garázs
Nincs
Erkély
Nincs
Azonosító
NIncs megadva
Ingatlan állapota
Építési mód
Tégla
Galéria
Lokalizáció
Megye: Győr-Moson-Sopron
Város: Győr
Ingatlan közelében:
busTömegközlekedés 
shopping-bagsPláza 
numberÓvoda 
shop (1)Közért 
pencil-and-rulerIskola 
blood-dropGyógyszertár 

Kapcsolódó ingatlanok

Eladó
39.900.000 Ft

Kapcsolatfelvétel

Deák Enikő - ingatlanértékesítő

Megosztás

Üzenet küldése

Küldj üzenetet közvetlenül az értékesítőnek.

NEM TALÁLJA AZ IGAZIT?

Segítünk megszerezni álmai otthonát!

  1. Adja meg milyen ingatlant keres
  2. Töltse ki az űrlapot
  3. És mi e-mailben értesítjük Önt folyamatosan frissülő ingatlankínálatunkról

Ingatlaneladás előtt áll?

Összegyűjtöttünk Önnek egy értékes anyagot az értékesítéshez!

Töltse ki űrlapunkat és már érkezik is az első anyagunk e-mail fiókjába!