ÚJ ÉPÍTÉSŰ TÉGLA LAKÁSOK TÖBB MÉRETBEN GYŐR IKONIKUS RÉSZÉN
- 2 szoba
- 1 fürdő
ÚJ ÉPÍTÉSŰ TÉGLA LAKÁSOK TÖBB MÉRETBEN GYŐR IKONIKUS RÉSZÉN
- 2 szoba
- 1 fürdő
Garzonok, nappali + 1 szobás, nappali + 2 szobás új lakások eladók Győr ikonikus részén- ÁTADÁS 2025. ÉV VÉGE!
ÖRÖK ÉRTÉKŰ, GARANTÁLTAN PRÉMIUM minőségben megvalósuló, műszaki tartalmában teljesen ÚJ ÉPÜLET-ben kínálunk eladó lakásokat és üzlethelyiségeket Győr történelmileg is jelentős helyszínén.
A belvárostól pár lépésre, a Kormányhivatal Örökségvédelmi Főosztálya által felügyelve - ezáltal a legszigorúbb építészeti előírásoknak megfelelően - folyik Győr egyik ikonikus épületének modernizálása, a Kossuth32 társasház újjáépítése.
Főbb műszaki paraméterek:
Főfalak: Porotherm 44 cm-es illetve nagy méretű tégla
Válaszfalak: Porotherm N+F 10 típusú falazóelemek
Nyílászárók: Prémium, fa nyílászárók, 3 rétegű üveggel
Födém: Betonfödém
Fűtés: Hőszivattyúval – padlófűtéssel, a fürdőszobában kiegészítő radiátorral
Hűtés: Hőszivattyúval – mennyezeti hűtéssel
Melegvíz: Hőszivattyús előállítással
Villamos hálózat: Lakások: 3 x 16 Amper, Üzletek: 3 x 16 Amper
Helyiségek:
Alagsor: 13 db tároló helyiség
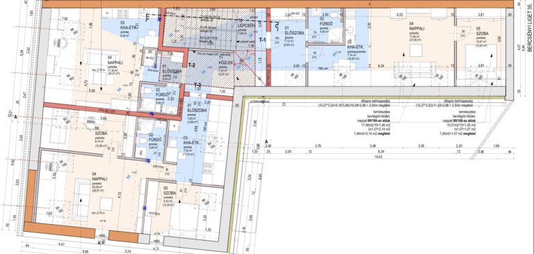
Földszint: 3 db üzlethelyiség, 3 db lakás
Első emelet: 4 db lakás
Második emelet: 3 db lakás
Az üzlethelyiségek közvetlen utcafronti bejárattal rendelkeznek, míg az udvarban kialakítandó három földszinti lakáshoz saját használatú terasz tervezett, ezek vizuális lehatárolása a teraszok szélén lévő cserjékkel történik, az udvar közepén közepes lombú fa tervezett, mely jelentős pozitívumot jelent az udvar mikroklímája szempontjából.
Elérhető földszinti lakások:
Fszt 1: 21,81 m2 + 6,3 m2 terasz + 3,35 m2 kert: 32.205.000 Ft
Fszt 3: 22,08 m2 + 10,43 terasz: 34.118.000 Ft
Elérhető első emeleti lakás:
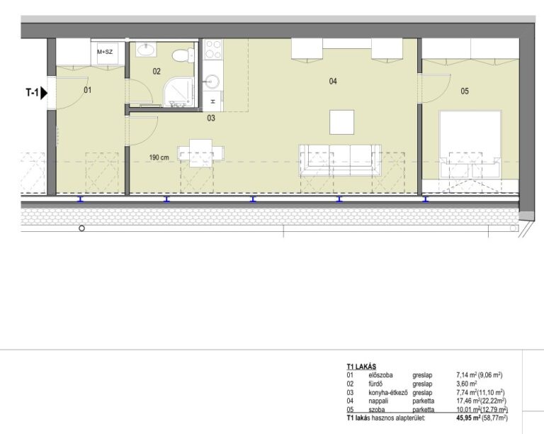
Első emelet 1-es lakás: 57,41 m2 + 9,32 terasz: 59.587.000 Ft
Elérhető második emeleti lakás:
Második emelet 1-es lakás: 46,35 m2 (bruttó 58,23 m2): 46.350.000 Ft
További főbb információk:
Nyílászárók:
A főhomlokzati pallótokos ablakok homlokzati megjelenésüket tekintve műemléki értéket képviselnek így a főhomlokzaton gerébtokos, egyedi gyártású nyílászárók kerülnek beépítésre. (Háromrétegű, hőszigetelt üveggel.) Az udvari épületszárnyak ablakai fából készülnek, háromrétegű hőszigetelő üvegezéssel.
Hőszigetelés:
A padlástérben 25cm Rockwool Multirock kőzetgyapot szigetelés tervezett, a padlószerkezetben Austrotherm AT N 100 típusú lépésálló hőszigetelés készül, emeleti padlószerkezetben Austrotherm AT-L2 lépéshanggátló szigetelés készül a közbenső födémeken, az udvari homlokzatokon AUSTROTHERM At-H vagy grafit utólagos hőszigetelés készül 20 illetve 15 cm vastagságban.
Erkélyek:
Az erkélyek monolit vasbeton lemezszerkezetek, a korlátok egyedi kovácsoltvas jellegű szerkezetek selyemfényű fekete vagy RAL 6005 mohazöld színre festve.
Lépcső:
A jelenlegi lépcső bontásra kerül, az új lépcső monolit vasbeton szerkezettel készül.
Tetőfedés:
A tető I. o. natur piros Tondach Pilis típusú hornyolt ívesvágású cserépfedéssel, 5/3 cm-es lécezéssel Tondach FOL K Black páraáteresztő tetőfóliával készül.
Lábazat:
A főhomlokzaton új tardosi mészkő lábazat készül.
Udvar:
Az udvari közlekedéshez szükséges burkolt területen kívüli részek füvesítettek ill. takarócserjével borított kialakítást kapnak.
Parkolás:
Az udvaron egy költözés-szállítás esetén használható közös használatú gépkocsi beálló tervezett, amely állandó parkolóként nem használható.
Az ingatlanokat emeltszintű fűtéskész vagy kulcsrakész állapotban adjuk át.
Kulcsrakész befejezés: 130.000 Ft + 5 % ÁFA/m2.
Legyen részese Ön is egy örök értékű ingatlannak Győr ikonikus helyszínén!
Várom megtisztelő megkeresését.
Kor | Fűtési mód | ||
Bútorozás | NIncs megadva | Tulajdonviszony | NIncs megadva |
Tájolás | NIncs megadva | Kert | NIncs megadva |
Pince | Nincs | Klíma | Nincs |
Lift | Nincs | Tároló | Van |
Parkolás | NIncs megadva | Garázs | Nincs |
Erkély | Nincs | Azonosító | NIncs megadva |
Ingatlan állapota | Új építésű | Építési mód | Tégla |
Kapcsolódó ingatlanok
- 5 szoba
- 2 fürdő
- 121 m²
- 1 szoba
- 0 fürdő
- 673 m²
















