KULCSRAKÉSZ, MODERN OTTHON GYŐR MELLETT, TAVASZI ÁTADÁSSAL!
- 4 szoba
- 2 fürdő
- 80 m²
KULCSRAKÉSZ, MODERN OTTHON GYŐR MELLETT, TAVASZI ÁTADÁSSAL!
- 4 szoba
- 2 fürdő
- 80 m²
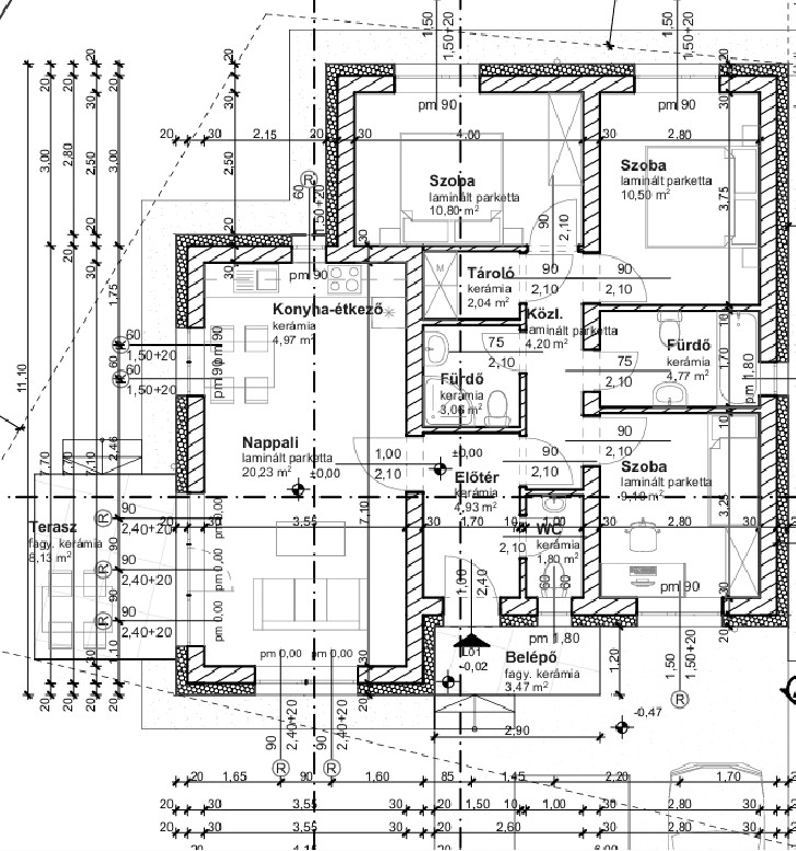
Győrből könnyen és gyorsan megközelíthető helyen, - Tét elején-, újonnan beépülő, rendezett, szép utcában eladó NAPPALI + 3 SZOBÁS, 2 FÜRDŐSZOBÁS, 3 WC-S, háztartási helyiséges, modern, lapostetős családi ház.
Főbb műszaki paraméterei:
- Leier 30-as főfalak + 20 cm (!) homlokzati szigetelés
- Monolit vasbeton födém
- 3 rétegű nyílászárók
- elektromos távirányítású redőnyök
- hőszivattyús fűtés - padlófűtéssel
- 180 literes HMV tartály (szintén hőszivattyúval)
- riasztó- és kamera-, valamint klíma-előkészítés
- lakótér terasszal: 90 m2
- telekméret: 400 m2
KULCSRAKÉSZ - IDE CSAK KÖLTÖZNIE KELL!
A megadott ár a KULCSRAKÉSZ ÁRAT TARTALMAZZA, gépesített, „L” alakú, nagyméretű konyhával, prémium gépekkel, mennyezetig burkolt fürdő és WC helyiségekkel, fürdőszobai bútorokkal, beltéri ajtókkal, villanykapcsolókkal, konnektorokkal.
TÉRKÖVEZETT, PARKOSÍTOTT UDVAR:
Az ár szintén TARTALMAZZA a térkövezett, tripla gépkocsi beálló, három oldali kerítés, valamint a füvesített és fásított kert árát.
Legyen modern, energiahatékony otthona az egyik legdinamikusabban fejlődő Győr környéki településen!
Kor | Fűtési mód | ||
Bútorozás | NIncs megadva | Tulajdonviszony | NIncs megadva |
Tájolás | NIncs megadva | Kert | NIncs megadva |
Pince | Nincs | Klíma | Nincs |
Lift | Nincs | Tároló | Van |
Parkolás | NIncs megadva | Garázs | Nincs |
Erkély | Nincs | Azonosító | NIncs megadva |
Ingatlan állapota | Új építésű | Építési mód | Tégla |
Kapcsolódó ingatlanok
- 1 szoba
- 1 fürdő
- 22 m²














































