NAPPALI + 4 SZOBÁS ÚJ ÉPÍTÉSŰ HÁZ ELADÓ NYÚLON
- 5 szoba
- 2 fürdő
- 121 m²
Nappali + 4 szobás, korszerű, modern családi ház Nyúlon – 3%-os hitelre is!
Győr szomszédságában, Nyúl központi, mégis nyugodt, zöldövezeti részén kínálunk eladásra belső kétszintes, garázsos családi házat. A ház, 400 m²-es telekkel rendelkezik, nyugodt, dombos, fás környezetre néző kilátással.
A modern, energiahatékony épületet igényes anyagok, átgondolt alaprajz és korszerű gépészeti megoldások jellemzik.
A 3%-os kamatozású hitel igénybevételével most kedvező feltételekkel lehet tulajdonosa egy minőségi otthonnak!
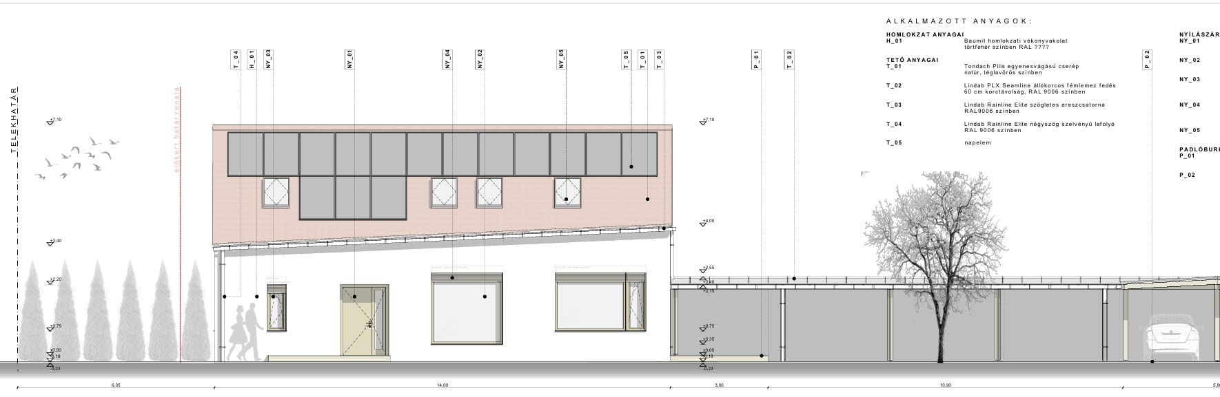
Főbb műszaki jellemzők
•30 cm-es tégla falazat
•15 cm Rockwool homlokzati hőszigetelés
•monolit vasbeton födém
•Tondach tetőcserép
•3 rétegű műanyag nyílászárók
•kondenzációs kazán, padlófűtés
•100 literes HMV-tároló
•3×20 Amper elektromos teljesítmény
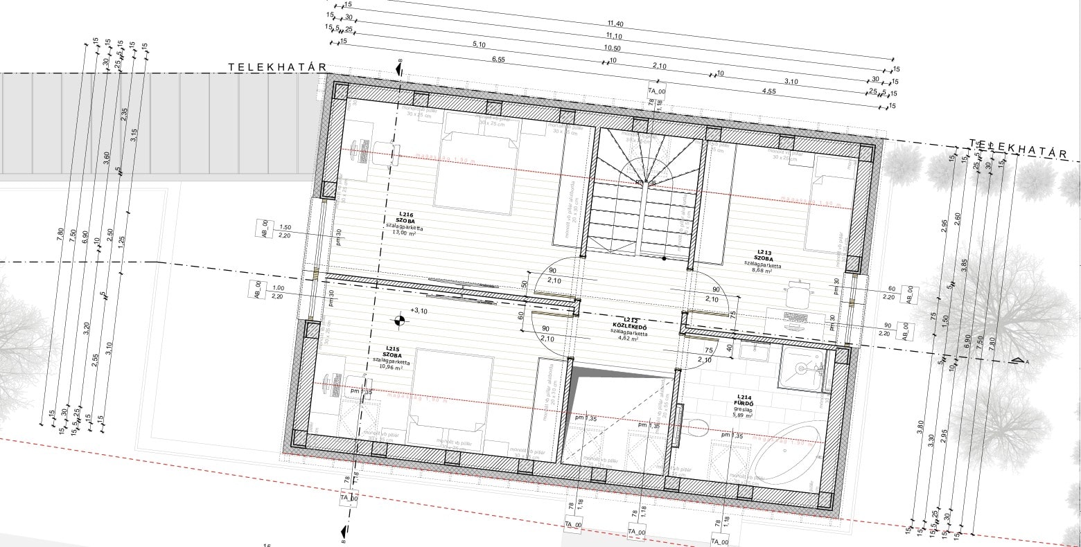
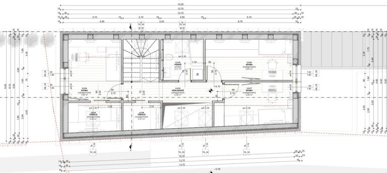
Nappali + 4 szoba, garázzsal és terasszal
Nettó alapterület:
földszint: 90,5 m²
emelet: 30,77 m²
garázs: 16,8 m²
Telek: 400 m²
Elrendezés:
földszint: tágas nappali–étkező–konyha közvetlen teraszkapcsolattal, hálószoba, fürdőszoba, WC
emelet: három hálószoba, fürdőszoba, két gardrób
A ház tökéletes választás azoknak, akik szeretik a praktikus, mégis elegáns térszervezést, valamint a nappalihoz kapcsolódó kertkapcsolatos életteret.
Emeltszintű fűtéskész ár: 74,9 MFt, kulcsrakész ár: 89,9 MFt
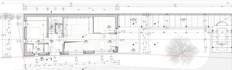
Nappali + 4 szoba, háztartási helyiséggel és garázzsal
Nettó alapterület:
földszint: 93 m²
emelet: 43,6 m²
garázs: 16,8 m²
Telek: 400 m²
Elrendezés:
földszint: konyha–étkező–nappali közvetlen teraszkapcsolattal, hálószoba, fürdőszoba, háztartási helyiség
emelet: három hálószoba, fürdőszoba
Emeltszintű fűtéskész ár: 84 MFt, kulcsrakész ár: 99 MFt
A gondosan megtervezett elrendezés a család minden tagjának kényelmet biztosít, a nagy ablakfelületek és a kertkapcsolat pedig napfényes, harmonikus otthont teremtenek.
Kor | Fűtési mód | ||
Bútorozás | NIncs megadva | Tulajdonviszony | NIncs megadva |
Tájolás | NIncs megadva | Kert | NIncs megadva |
Pince | Nincs | Klíma | Nincs |
Lift | Nincs | Tároló | Van |
Parkolás | NIncs megadva | Garázs | Nincs |
Erkély | Nincs | Azonosító | NIncs megadva |
Ingatlan állapota | Új építésű | Építési mód | Tégla |
Kapcsolódó ingatlanok
- 5 szoba
- 2 fürdő
- 121 m²
- 1 szoba
- 0 fürdő
- 673 m²






























